Filtro de areia enrolado de alta potência e eficácia recomendado para piscinas de maior tamanho, como semipúblicas e privadas com grande fluxo de banhistas.
- O filtro BARCELONA suporta altas pressões de uso de até 2,5 bar.
- Ele oferece uma grande capacidade de trabalho nas condições mais exigentes.
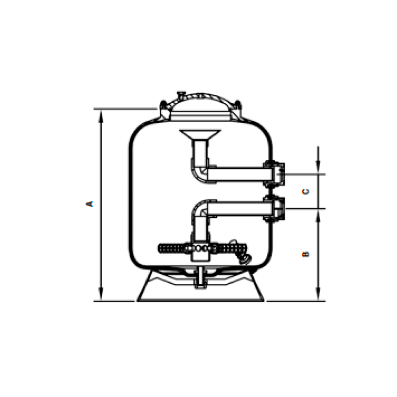
- Conexões de 1,5" e 2".
Filtros de areia enrolados que permitem altas pressões de uso, variando de 0,5 a 2,5 bar, tornando-os uma excelente opção para uso em piscinas semipúblicas e privadas com alto fluxo de usuários.
Eles possuem saídas laterais de 1,5" e 2", dependendo do modelo escolhido.
Características técnicas:
- Válvula de 6 vias montada lateralmente.
- Pressão de trabalho: 0,5 a 2,5 bar.
- Pressão de teste: 3,75 bar.
- Conexões de 1,5" e 2".
Válvula de 6 vias:
1. FILTRO (FILTER) - para realizar uma filtragem normal (de 10 a 14 horas diárias).
2. CONTRALAVADO (BACKWASH) - para limpar o filtro.
3. ENXÁGUE (RINSE) - permite que a água carregada de impurezas após o contralavado seja evacuada para o esgoto e não para a piscina.
4. ESGOTO (WASTE) - evacua a água diretamente para o esgoto sem passar pelo filtro, reduzindo o nível de água da piscina e evacuando diretamente.
5. RECIRCULAÇÃO (RECIRCULATE) - a água circula sem passar pelo filtro para distribuir rapidamente produtos químicos ou durante a cloração de choque.
6. FECHADO (CLOSED) - interrompe a circulação entre o filtro e a bomba.


